セットアップオフィスのパターンは4種類です。
〇本町通沿いに2025年4月竣工予定の新築ビル「PMO EX 本町」のセットアップ区画のご紹介〇
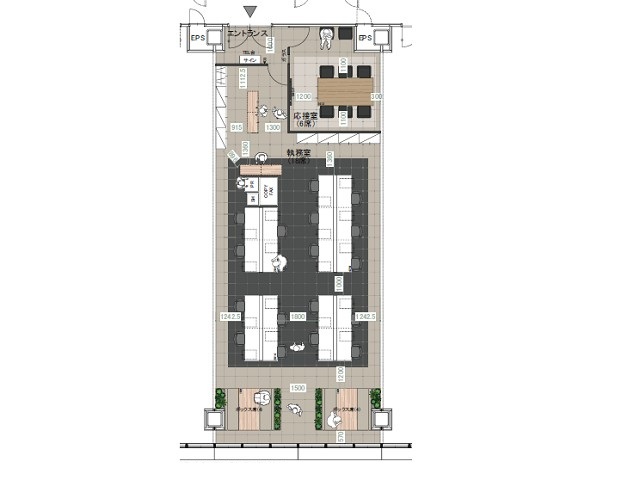
大阪メトロ御堂筋線本町駅から徒歩3分の本町通沿いに竣工する新築ビルにて、30~120坪のバリエーションでセットアップが募集となりました。
ワンフロア約230坪から分割を行い、最小30坪(席数20席・会議室1部屋)からご検討いただけます。
また保証会社を利用することにより、敷金12ヶ月→最大0ヶ月まで抑えてご入居いただくことも可能となっております。
※別途審査が必要となります
新築オフィスビルに入居したいけど、移転費用がかかるから、、、など思っている方に是非オススメの物件となっております。
是非ご興味ございましたらご連絡ください!



