〇中之島エリアの居抜きオフィスのご紹介〇
中之島エリアの大型ビルにて47坪の居抜きでのオフィスが募集開始となりました!
大型ビルの1区画で、什器はないですが、会議室2部屋作られた事務所となっております。
当ビル内にコンビニやリフレッシュスペースなど完備している、ハイグレードオフィスビルです。
人気エリアでの希少な居抜きオフィスですので、ご興味ある方は是非お問合せください。
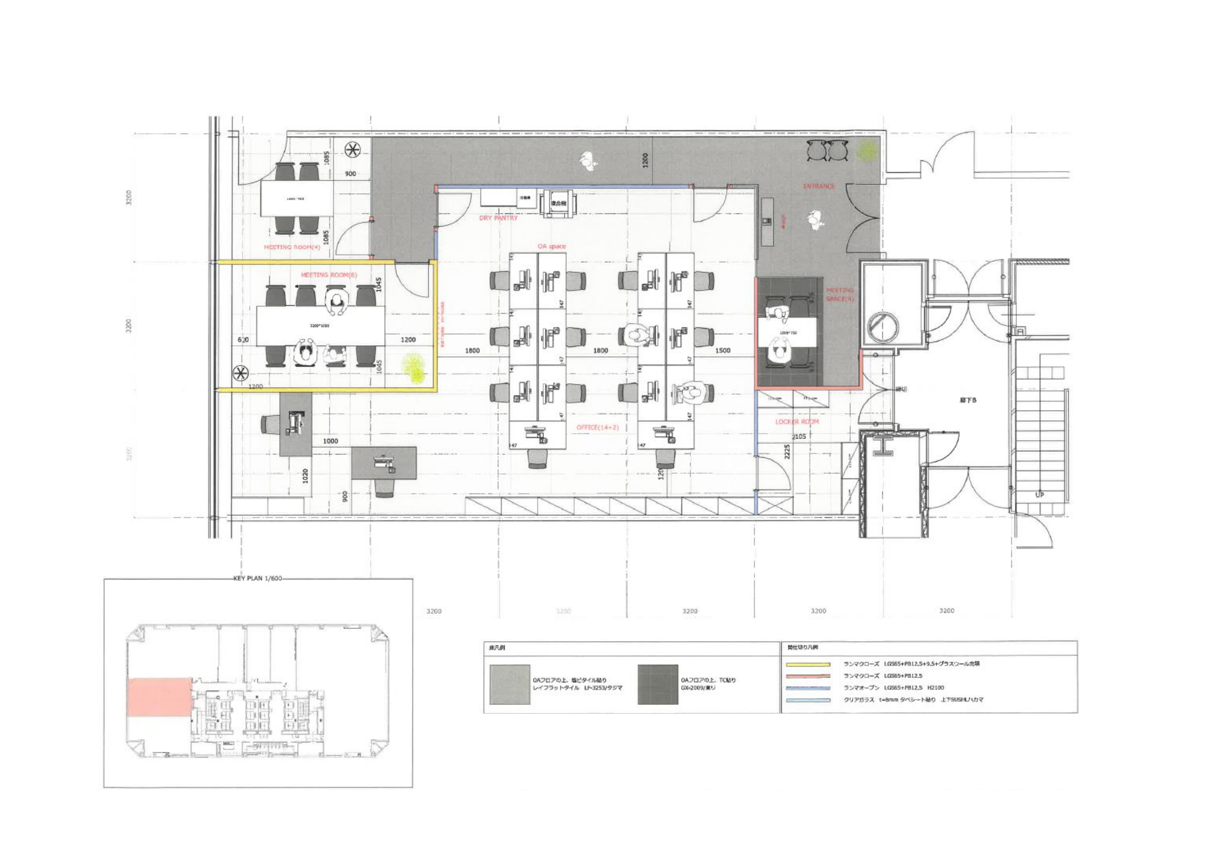
〇中之島エリアの居抜きオフィスのご紹介〇
中之島エリアの大型ビルにて47坪の居抜きでのオフィスが募集開始となりました!
大型ビルの1区画で、什器はないですが、会議室2部屋作られた事務所となっております。
当ビル内にコンビニやリフレッシュスペースなど完備している、ハイグレードオフィスビルです。
人気エリアでの希少な居抜きオフィスですので、ご興味ある方は是非お問合せください。
